Biệt thự 2 tầng tân cổ điển tại Móng Cái
Dự án thiết kế biệt thự 2 tầng tân cổ điển tại Móng Cái - Quảng Ninh mang phong cách châu Âu đẹp độc đáo và sang trọng. Mời quý khách chiêm ngưỡng không gian sống lý tưởng do các kiến trúc sư Kiến Sang thiết kế.
Hồ sơ công trình
Biệt thự 2 tầng tân cổ điển tại Móng Cái - KS50755
- Khách hàng: Chị Phúc
- Địa điểm: Nhà đẹp tại Quảng Ninh
- Phong cách: Biệt thự tân cổ điển
- Số tầng: Biệt thự 2 tầng tân cổ điển
- Mặt tiền: Biệt thự 2 mặt tiền
- Diện tích: Biệt thự 250m2
- Công năng: Phòng khách cổ điển, Đồ trang trí cổ điển, Phòng ngủ cổ điển, Phòng bếp cổ điển, Phòng làm việc cổ điển, Phòng thờ cổ điển, Phòng Karaoke, Phòng tập Gym, Phòng Wc, Gara để xe, Ban công, Bể bơi, Sân phơi, Sân thượng, Sân vườn, Đại sảnh, Thông tầng, Cửa cuốn, Sàn gỗ, Trần thạch cao, Sàn nhựa, Đồ thờ.
- Khách yêu cầu: Biệt thự Mái Thái, Biệt thự 5 tỷ, Biệt thự Kiểu Châu Âu, Biệt thự Kiểu Thái, Biệt thự Đơn lập, Biệt thự Kiểu chữ I
- Năm thực hiện: 2025
Kính thưa quý khách, dự án thiết kế biệt thự 2 tầng tân cổ điển tại Móng Cái mang phong cách châu Âu là nguồn cảm hứng bất tận thể hiện phong cách riêng của gia chủ. Sự khác biệt của biệt thự 2 tầng tân cổ điển tại Móng Cái thể hiện đẳng cấp, quyền quý và cá tính rất rất riêng. Điều đó thể hiện qua tác phẩm do đội ngũ kiến trúc sư của Kiến Sang thiết kế nằm trong bộ sưu tập dự án thiết kế kiến trúc mới nhất 2026. Các mẫu trên đây là một phần trong bộ biệt thự 2 tầng tân cổ điển tại Móng Cái, chúng tôi không thể cung cấp 100% thông tin trên website do khối lượng bản vẽ chi tiết và tổng thể rất lớn. Quý khách xin vui lòng tham khảo thêm các mẫu thiết kế kiến trúc dưới đây hoặc liên hệ với chuyên gia kiến trúc của chúng tôi để được tư vấn trực tiếp.
1. Thiết kế kiến trúc
Ngôi nhà là tổ ấm của mọi gia đình, để tổ ấm luôn hạnh phúc và thăng hoa các chuyên gia phong thủy đã khuyến cáo cần thiết kế kiến trúc hợp với phong thủy. Ngôi nhà hợp với phong thủy sẽ xua tan mọi điều xấu và thu nạp những năng lượng tốt mang lại sức khỏe và tài lộc cho gia chủ. Vì vậy quý khách cần liên hệ ngay với chuyên gia kiến trúc của Kiến Sang để được khảo sát và tư vấn.
Thiết kế biệt thự
Quý khách có thể xem trọn bộ sưu tập mẫu thiết kế biệt thự cổ điển và thiết kế biệt thự tân cổ điển dưới đây:
- Biệt thự 2 tầng tân cổ điển
- Biệt thự 3 tầng tân cổ điển
- Biệt thự 4 tầng tân cổ điển
- Biệt thự 5 tầng tân cổ điển
Mỗi gia chủ có gu riêng vì vậy thường chọn kiểu xây nhà riêng, dưới đây là những mẫu biệt thự đẹp theo xu hướng rất cụ thể:
- Biệt thự Kiểu Nhật
- Biệt thự Kiểu Pháp
- Biệt thự Kiểu Mỹ
- Biệt thự Kiểu Thái
- Biệt thự Kiểu Châu Âu
- Biệt thự Kiểu Hàn Quốc
- Biệt thự kiểu Anh
- Biệt thự Nhà vườn
- Biệt thự Song lập
- Biệt thự Đơn lập
- Biệt thự Liền kề
- Biệt thự Phố
- Biệt thự Mái Thái
- Biệt thự Kiểu chữ L
- Biệt thự Kiểu chữ U
- Biệt thự Kiểu chữ I
Quý khách có thể tìm hiểu các mẫu biệt thự có giá khác nhau tại đây:
- Biệt thự 1 tỷ
- Biệt thự 2 tỷ
- Biệt thự 3 tỷ
- Biệt thự 4 tỷ
- Biệt thự 5 tỷ
- Biệt thự 20 tỷ
- Biệt thự 30 tỷ
- Biệt thự 40 tỷ
- Biệt thự 50 tỷ
- Biệt thự 100 tỷ
- Biệt thự 200 tỷ
- Biệt thự 300 tỷ
- Biệt thự 400 tỷ
- Biệt thự 500 tỷ
- Biệt thự 700 tỷ
- Biệt thự 800 tỷ
- Biệt thự 1000 tỷ
- Biệt thự 2000 tỷ
- Biệt thự 3000 tỷ
- Biệt thự Triệu đô
- Biệt thự 6 tỷ
- Biệt thự 10 tỷ
- Biệt thự 600 tỷ
- Biệt thự 600 triệu
- Biệt thự 700 triệu
- Biệt thự 800 triệu
2. Thiết kế nội thất
Nếu như ngoại thất biệt thự 2 tầng tân cổ điển tại Móng Cái thể hiện gu cá tính riêng thì nội thất thể hiện vẻ đẹp thâm hồn. Quý khách hãy tìm hiểu thật kỹ những mẫu thiết kế nội thất trong bộ sưu tập chúng tôi đã thiết kế và sưu tầm ở trong và ngoài nước theo xu hướng mới nhất 2026 tại đây:
Nội thất phòng khách
Ghế sofa tân cổ điển là một phần không thể thiếu của phòng khách tân cổ điển, Quý khách hãy tham khảo những mẫu thiết kế và đồ dùng nội thất tân cổ điển mới nhất 2026 tại đây:
- Bàn trà cổ điển
- Kệ trang trí cổ điển
- Ghế Sofa cổ điển
- Kệ tivi cổ điển
- Khung gương cổ điển
- Tủ rượu cổ điển
- Tủ giày dép cổ điển
- Bàn ghế phòng khách cổ điển
Phòng ngủ cổ điển
- Giường ngủ cổ điển
- Bàn trang điểm cổ điển
- Tủ quần áo cổ điển
Phòng bếp cổ điển
- Bàn ăn cổ điển
- Ghế ăn cổ điển
- Tủ bếp cổ điển
3. Đồ trang trí nội thất
Đồ trang trí nội thất là một phần không thể thiếu làm ngôi nhà luôn mới mẻ làm cuộc sống thêm vui vẻ hạnh phúc. Quý khách có thể tìm hiểu các mẫu đồ trang trí nội thất mới nhất 2026 tại đây:
- Tranh dán tường 3D
- Thảm trang trí
- Miếng dán tường 3D
- Đèn trang trí
- Tranh treo tường
- Tranh dán tường
- Giấy dán tường
- Đồ trang trí
- Kệ gỗ treo tường
- Bàn ăn thông minh
- Bàn ghế học sinh
- Đèn bàn
- Đèn Led
- Sàn gỗ tự ghép
- Đèn chùm
- Đồ trang trí tân cổ điển
- Tủ giày dép
- Máy khuếch tán tinh dầu
- Kệ sách
- Đồng hồ trang trí
- Nội thất xanh
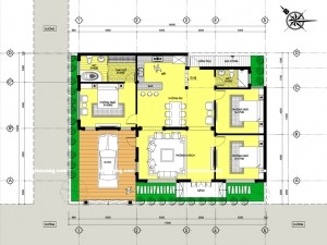
Hồ sơ bản vẽ mẫu thiết kế biệt thự của Nhà Đẹp Kiến Sang gồm những gì?
Phần trên là những thông tin cơ bản về công trình mẫu thiết kế biệt thự đẹp, Vì lý do bản quyền tác giả với khách hàng, Kiến Sang chỉ uploat được các bản vẽ ý tưởng thiết kế công trình bao gồm mặt bằng công năng và phối cảnh 3D các góc nhìn khác nhau, Thông tin chi tiết về khối lượng công việc nằm trong hồ sơ bản vẽ thiết kế thi công đầy đủ của Kiến Sang bao gồm:
- Phần Kiến trúc : Các bản vẽ mặt bằng phân chia không gian nội thất các tầng, bản vẽ mặt bằng thi công tường xây, chi tiết cấu tạo các mặt đứng, măt cắt công trình & tất cả các bản vẽ kỹ thuật thi công phần chi tiết cửa, vệ sinh, cầu thang….& hồ sơ chi tiết quy hoạch xây dựng cổng và tường rào.
- Phần Kết cấu : Các bản vẽ thuyết minh hướng dẫn kỹ thuật, bản vẽ chi tiết cấu tạo kết cấu móng, chi tiết cấu tạo cột, dầm, sàn...tất cả các phần đều được kỹ sư Kiến Sang tính toán khoa học với hệ số an toàn hợp lý đối với từng hạng mục công trình.
- Phần bản vẽ thiết kế Điện & Thông tin liên lạc cho toàn bộ không gian các tầng.
- Phần bản vẽ thiết kế cấp thoát nước tổng thể.
Công trình mẫu thiết kế biệt thự đẹp được KTS Kiến Sang thiết kế luôn luôn theo xu hướng kiến trúc nhà ở bền vững, mật độ xây dựng hợp lý, tất cả các phòng đều được kiến trúc sư Nhà Đẹp Kiến Sang đưa ra giải pháp lấy ánh sáng và thông gió tự nhiên giúp cho gia đình có không gian sống lý tưởng và gần gũi với thiên nhiên.
Và đặc biệt, toàn bộ hồ sơ phong thủy được tính toán theo tuổi của chủ đầu tư, tất cả các kính thước cửa, cổng đều được căn chỉnh và lựa chọn theo thước lỗ ban số đẹp chuẩn xác
Xây nhà biệt thự có cần phải thuê kiến trúc sư thiết kế hay không ?
Câu hỏi quan trọng mà nhiều gia đình thường đặt ra trước khi bắt đầu xây dựng mẫu nhà biệt thự là không biết mình nên tự ý thiết kế và thi công nhà mình hay không? Để giải đáp câu hỏi này, Kiến Sang sẽ chia sẻ một số trường hợp phổ biến mà nhiều gia đình đã gặp phải khi tự thi công :
- Mặt bằng công năng sử dụng của mẫu nhà biệt thự đẹp sau khi hoàn thiện mắc nhiều lỗi nghiêm trọng và giao thông chồng chéo nhau: Điều này sẽ dẫn đến việc các phòng trở nên chật hẹp và không kết nối mạch lạc được với nhau khiến quá trình sử dụng sẽ bất tiện
- Rất nhiều không gian phòng bí bách, thiếu ánh sáng và thông gió tự nhiên
- Rất nhiều trường hợp phải đập đi xây lại vì không có bản vẽ trước đó, dẫn đến việc thi công bị sai, thực tế hoàn thiện gia đình mới thấy không hợp lý
- Phát sinh chi phí xây dựng quá nhiều so với tài chính dự kiến của gia đình : Nhiều gia đình không có chuyên môn nên chắc chắn sẽ không có được kế hoạch và quản lý vật liệu, kỹ thuật nên dẫn đến việc phát sinh chi phí xây dựng không thể kiểm soát được
- Công trình xảy ra khá nhiều sự cố không mong muốn như bị nứt tường, thấm mái, ban công, vệ sinh, nghiêng đổ nhà do không có kỹ sư, kiến trúc sư tính toán và tư vấn kỹ thuật từ phần thô đến phần hoàn thiện
Vì vậy, tại sao không nên tìm một đơn vị thiết kế uy tín và chuyên nghiệp để đảm bảo quyền lợi của mình? Dưới đây là một số lý do tại sao các bạn nên có hồ sơ bản vẽ để xây nhà:
- Chi phí thiết kế không cao so với tổng mức đầu tư xây dựng công trình
- Mặt bằng mẫu nhà biệt thự được phân chia hợp lý để đảm bảo công năng sử dụng tốt: Sự chuyên nghiệp trong thiết kế đảm bảo rằng mọi phòng sẽ được bố trí khoa học, có diện tích sử dụng rộng rãi, có đầy đủ ánh sáng tự nhiên và thông gió tốt.
- Không phát sinh chi phí xây dựng: Việc có một kế hoạch thiết kế chính xác giúp tránh phát sinh chi phí không mong muốn trong quá trình xây dựng.
- Tối ưu thời gian thi công xây dựng: Khi có bản vẽ thiết kế xây dựng của kiến trúc sư, các bạn sẽ không còn phải suy nghĩ xem nhà mình sẽ phải xây như thế nào nữa, các đội thợ sẽ có kế hoạch chính xác hơn khi làm theo hồ sơ bản vẽ thiết kế nhà biệt thự
- Mặt bằng công trình biệt thự được thiết kế chuẩn theo phong thủy, các hướng đẹp sẽ được tính toán theo tuổi của gia chủ
- Quan trọng nhất trong quá trình làm việc kiến trúc sư Chu Minh Công – Ceo. Nhà Đẹp Kiến Sang sẽ trực tiếp định hướng về kế hoạch thiết kế ý tưởng và chia sẻ tất cả các kinh nghiệm trong quá trình thi công xây dựng công trình để đảm bảo công trình thi công đúng các tiêu chuẩn kỹ thuật.
Những lợi ích khi khách hàng khi ký hợp đồng với Nhà Đẹp Kiến Sang ?
Đây là chương trình ưu đãi đặc biệt dành cho các khách hàng trong quá trình thiết kế và xây dựng công trình mẫu biệt thự. Đối với công ty chúng tôi, sự hài lòng của khách hàng luôn đặt lên hàng đầu, và chúng tôi muốn mang đến cho khách hàng những lợi ích và tiện ích tốt nhất.
- Miễn Phí Công Tác Khảo Sát Khu Đất Xây Dựng Công Trình: Đối với tất cả công trình, kiến trúc sư sẽ trực tiếp khảo sát khu đất miễn phí để đánh giá được các yếu tố liên quan đến hướng nắng, hướng gió, ao hồ, sông suối, đường xá xung quanh…vv để có thể định hướng được các phương án và giải pháp thiết kế phù hợp nhất với gia đình.
- Miễn Phí Giám Sát Tác Giả Các Giai Đoạn Quan Trọng : Để đảm bảo sự an toàn và chất lượng cho công trình của bạn, Kiến trúc sư Nhà Đẹp Kiến Sang sẽ giám sát miễn phí tại các giai đoạn quan trọng như làm móng, sàn, mái và các công đoạn quan trọng khác.
- Miễn Phí Vẽ Hồ Sơ Cấp Phép Xây Dựng & Các Văn Bản Pháp Lý Liên Quan
- Miễn Phí Giảm 5% Chi Phí Thiết Kế Đối Với Khách Hàng Thiết Kế Từ Xa
- Miễn Phí 50% Chi Phí Thiết Kế Khi Thi Công Trọn Gói
Hãy liên hệ ngay với chuyên gia thiết kế kiến trúc của Kiến Sang để được tư vấn thiết kế kiến trúc và phong thủy MIỄN PHÍ.
Kiến Trúc Kiến Sang- "Kiến tạo hạnh phúc"
Cảm ơn quý khách đã dành rất nhiều thời gian tìm hiểu mẫu biệt thự 2 tầng tân cổ điển tại Móng Cái của chúng tôi, hầu hết khách hàng đã truy cập website Kiến Sang đều trầm trồ và cảm thấy hài lòng vì website cung cấp đầy đủ thông tin khách hàng cần tham khảo. Tuy nhiên nội dung có thể còn nhiều thiếu sót, chúng tôi rất muốn làm hài lòng khách hàng vì vậy Quý khách có mong muốn tư vấn đừng ngại liên hệ với chuyên gia của chúng tôi để được tư vấn chi tiết hoàn toàn miễn phí. Dưới đây là các mẫu thiết kế biệt thự 2 tầng tân cổ điển tại Móng Cái tương tự kính mời Quý khách tham khảo:
Hình ảnh dự án
Ảnh 29. Biệt thự 2 tầng tân cổ điển tại Móng Cái (Mã: KS50755-29)
Ảnh 30. Biệt thự 2 tầng tân cổ điển tại Móng Cái (Mã: KS50755-30)
Ảnh 31. Biệt thự 2 tầng tân cổ điển tại Móng Cái (Mã: KS50755-31)
Ảnh 32. Biệt thự 2 tầng tân cổ điển tại Móng Cái (Mã: KS50755-32)
Ảnh 33. Biệt thự 2 tầng tân cổ điển tại Móng Cái (Mã: KS50755-33)
Ảnh 34. Biệt thự 2 tầng tân cổ điển tại Móng Cái (Mã: KS50755-34)
Dự án tương tự
Phong thuỷ
Tra cứu hơn +3000 thông tin phong thủy hữu ích cho gia chủ khi xây nhà và sinh hoạt.
Dự toán công trình
YÊU CẦU BÁO GIÁ & DỰ TOÁN
- m2
- tầng
Hệ thống đang gửi yêu cầu lập dự toán và báo giá xây dựng... Vui lòng đợi trong ít giây!
Video clip
Tin tức Kiến Sang
- 44 Tuổi có xây nhà được không? 1 tháng trước
- 33 Tuổi có xây nhà được không? 1 tháng trước
- 52 Tuổi có xây nhà được không? 3 tháng trước
- 50 Tuổi có xây nhà được không? 8 tháng trước
- 41 Tuổi có xây nhà được không? 10 tháng trước
- 48 Tuổi có xây nhà được không? 10 tháng trước
- 54 Tuổi có xây nhà được không? 11 tháng trước
- 59 Tuổi có xây nhà được không? 11 tháng trước
- 56 Tuổi có xây nhà được không? 1 năm trước
- 39 Tuổi có xây nhà được không? 1 năm trước
- 35 Tuổi có xây nhà được không? 1 năm trước
- 58 Tuổi có xây nhà được không? 1 năm trước
- 47 Tuổi có xây nhà được không? 1 năm trước
- 60 Tuổi có xây nhà được không? 1 năm trước
- 49 Tuổi có xây nhà được không? 1 năm trước
- 43 Tuổi có xây nhà được không? 1 năm trước
- 55 Tuổi có xây nhà được không? 1 năm trước
- 36 Tuổi có xây nhà được không? 1 năm trước
- 45 Tuổi có xây nhà được không? 1 năm trước
- 57 Tuổi có xây nhà được không? 2 năm trước













































