
- Xây nhà trọn gói
- Thiết kế biệt thự
- Mẫu biệt thự đẹp
- Biệt thự cổ điển
- Biệt thự tân cổ điển
- Biệt thự hiện đại
- Biệt thự Kiểu Châu Âu
- Biệt thự Kiểu Pháp
- Biệt thự Đơn lập
- Biệt thự Song lập
- Biệt thự Mái Thái
- Biệt thự Nhà phố
- Biệt thự Nhà vườn
Phong cách- Mẫu biệt thự 1 tầng
- Mẫu biệt thự 2 tầng
- Mẫu biệt thự 3 tầng
- Mẫu biệt thự 4 tầng
- Mẫu biệt thự 5 tầng
- Biệt thự 2 tầng kiểu Pháp
- Biệt thự 2 tầng mái Thái
- Biệt thự 2 tầng nhà vườn
- Biệt thự 3 tầng kiểu Pháp
- Biệt thự 3 tầng mái Thái
- Mẫu nhà cấp 4 đẹp
Biệt thự Tầng- Biệt thự 600 triệu
- Biệt thự 700 triệu
- Biệt thự 800 triệu
- Biệt thự 1 tỷ
- Biệt thự 2 tỷ
- Biệt thự 3 tỷ
- Biệt thự 4 tỷ
- Biệt thự 5 tỷ
- Biệt thự 6 tỷ
- Biệt thự 10 tỷ
- Biệt thự 20 tỷ
Mức giá - Thiết kế khách sạn
- Thiết kế nhà phố
- Thiết kế nội thất
- Hỏi đáp
- Trang chủ
- Biệt thự 650m2
Biệt thự 650m2
- ★
- ★
- ★
- ★
- ★
Xếp hạng: 0 (0 đánh giá)
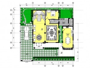
Bộ sưu tập mẫu thiết kế biệt thự 600m2-650m2 đẹp phong cách châu Âu là nguồn cảm hứng bất tận thể cá tính cách riêng của gia chủ. Tư vấn: ☎ 0888.333.063
Giới thiệu

Ảnh. Biệt thự 650m2
Kính thưa quý khách, biệt thự 650m2 mang phong cách châu Âu là nguồn cảm hứng bất tận thể hiện phong cách riêng của gia chủ. Sự khác biệt của các mẫu biệt thự tân cổ điển - cổ điển thể hiện đẳng cấp, quyền quý và cá tính rất rất riêng. Điều đó thể hiện qua các mẫu thiết kế biệt thự 650m2 nằm trong bộ sưu tập thiết kế kiến trúc tân cổ điển do chúng tôi dày công thiết kế và sưu tầm. Các mẫu trên đây tuy là các hình ảnh tham khảo nhưng chúng tôi xây dựng với mục đích giúp Quý khách hàng có thêm nhiều ý tưởng khi thiết kế biệt thự 650m2 tân cổ điển và nội thất cổ điển.
1. Thiết kế kiến trúc
Nói tới thiết kế kiến kiến trúc là nói tới Kiến Sang, chúng tôi không sản xuất đồ gỗ hay bán các đồ gỗ tân cổ điển. Tuy nhiên chúng tôi rất hiểu Quý khách cần sử dụng đồ gỗ tân cổ điển nào hợp với căn nhà sao cho hợp với phong thủy và mong muốn của gia chủ. Kiến Sang xin giới thiệu các mẫu thiết kế kiến trúc mới nhất 2026 và dịch vụ của chúng tôi:
Thiết kế biệt thự
- Mẫu biệt thự 2 tầng tân cổ điển
- Mẫu biệt thự 3 tầng tân cổ điển
- Mẫu biệt thự 4 tầng tân cổ điển
- Mẫu biệt thự 5 tầng tân cổ điển
- Thiết kế nội thất tân cổ điển
Nhà phố tân cổ điển
- Mẫu nhà phố 2 tầng tân cổ điển
- Mẫu nhà phố 3 tầng tân cổ điển
- Mẫu nhà phố 4 tầng tân cổ điển
- Mẫu nhà phố 5 tầng tân cổ điển
Khách sạn tân cổ điển
- Mẫu khách sạn 3 tầng tân cổ điển
- Mẫu khách sạn 4 tầng tân cổ điển
- Mẫu khách sạn 5 tầng tân cổ điển
2. Thiết kế nội thất
Để quý khách hàng có nhiều thông tin về thiết kế nội thất cổ điển và nội thất tân cổ điển Kiến Sang xin giới thiệu những thông tin liên quan tới nội thất biệt thự 650m2.
Nội thất phòng khách
Nói tới biệt thự 650m2 một phần không thể thiếu là phòng khách, Quý khách hãy tham khảo những mẫu thiết kế và đồ dùng nội thất tân cổ điển mới nhất 2026 tại đây:
- Bàn trà cổ điển
- Kệ trang trí cổ điển
- Ghế Sofa cổ điển
- Kệ tivi cổ điển
- Khung gương cổ điển
- Tủ rượu cổ điển
- Tủ giày dép cổ điển
- biệt thự cổ điển
Để nội thất phòng khách tân cổ điển mang lại cảm xúc vui vẻ và sang trọng hơn cần có sự tư vấn của các chuyên gia kiến trúc và chuyên gia phong thủy. Nắm bắt được điều đó Kiến Sang đã xây dựng hệ thống Website phân tích chuyên sâu từng vấn đề ngôi nhà của Quý khách. Với những hình ảnh đẹp và đầy đủ giúp Gia chủ dù khó tính đến đâu vẫn có thể tìm được ý tưởng phù hợp.
Phòng ngủ cổ điển
Quý khách đang tìm hiểu mẫu biệt thự 650m2 tuy nhiên không thể bỏ qua mẫu phòng ngủ cổ điển, xin vui lòng tham khảo thêm tại đây:
- Giường ngủ cổ điển
- Kệ trang trí cổ điển
- Bàn trang điểm cổ điển
- Tủ quần áo cổ điển
- Rèm cổ điển
Phòng bếp cổ điển
Một sự lựa chọn nữa không nên bỏ qua nếu Quý khách quan tâm tới đồ dùng cho không gian bếp ăn căn nhà của mình. Dưới đây là các mẫu đồ gỗ cổ điển cho phòng bếp, quý khách có thể tham khảo tại đây:
- Bàn ăn cổ điển
- Ghế ăn cổ điển
- Tủ bếp cổ điển
- Bàn đảo cổ điển
Quý khách có nhu cầu đặt mua biệt thự 650m2 hoặc tư vấn thiết kế biệt thự 650m2 hãy liên hệ ngay với chuyên gia thiết kế kiến trúc của chúng tôi để được tư vấn tốt nhất. Những mẫu trên đây là hình ảnh tham khảo ý tưởng, Quý khách cần có sự tư vấn từ các chuyên gia để nội thất của gia đình hợp phong thủy mang lại nhiều vượng khí tốt. Kiến Sang rất hận hạnh được tư vấn và đồng hành cùng Quý vị!
Kinh nghiệm: 12 nămKiến trúc sư Chu Minh Công - CEO Nhà Đẹp Kiến Sang 12 năm kinh nghiệm trong nghành thiết kế kiến trúc & thi công xây dựng nhà biệt thự, nhà phố, lâu đài, khách sạn...theo phong thủy.
Bình luận
Xu hướng mới nhất 2026
Top 90 dịch vụ khách hàng được tư vấn nhiều nhất tháng 04 năm 2026.
- Chu Minh Công
- Top 10 biệt thự đẹp nhất An Giang
- Top 10 biệt thự đẹp nhất Bình Dương
- Top 10 biệt thự đẹp nhất Bình Phước
- Top 10 biệt thự đẹp nhất Bình Thuận
- Top 10 biệt thự đẹp nhất Bình Định
- Top 10 biệt thự đẹp nhất Bạc Liêu
- Top 10 biệt thự đẹp nhất Bắc Giang
- Top 10 biệt thự đẹp nhất Bắc Kạn
- Top 10 biệt thự đẹp nhất Bắc Ninh
- Top 10 biệt thự đẹp nhất Bến Tre
- Top 10 biệt thự đẹp nhất Cao Bằng
- Top 10 biệt thự đẹp nhất Cà Mau
- Top 10 biệt thự đẹp nhất Cần Thơ
- Top 10 biệt thự đẹp nhất Gia Lai
- Top 10 biệt thự đẹp nhất Hà Giang
- Top 10 biệt thự đẹp nhất Hà Nam
- Top 10 biệt thự đẹp nhất Hà Nội
- Top 10 biệt thự đẹp nhất Hà Tĩnh
- Top 10 biệt thự đẹp nhất Hòa Bình
- Top 10 biệt thự đẹp nhất Hải Dương
- Top 10 biệt thự đẹp nhất Hải Phòng
- Top 10 biệt thự đẹp nhất Hậu Giang
- Top 10 biệt thự đẹp nhất HCM
- Top 10 biệt thự đẹp nhất Huế
- Top 10 biệt thự đẹp nhất huyện Ứng Hòa
- Top 10 biệt thự đẹp nhất huyện Ba Vì
- Top 10 biệt thự đẹp nhất huyện Bình Chánh
- Top 10 biệt thự đẹp nhất huyện Cần Giờ
- Top 10 biệt thự đẹp nhất huyện Củ Chi
- Top 10 biệt thự đẹp nhất huyện Chương Mỹ
- Top 10 biệt thự đẹp nhất huyện Gia Lâm
- Top 10 biệt thự đẹp nhất huyện Hóc Môn
- Top 10 biệt thự đẹp nhất huyện Hoài Đức
- Top 10 biệt thự đẹp nhất huyện Mê Linh
- Top 10 biệt thự đẹp nhất huyện Mỹ Đức
- Top 10 biệt thự đẹp nhất huyện Nhà Bè
- Top 10 biệt thự đẹp nhất huyện Phú Xuyên
- Top 10 biệt thự đẹp nhất huyện Phúc Thọ
- Top 10 biệt thự đẹp nhất huyện Quốc Oai
- Top 10 biệt thự đẹp nhất huyện Sóc Sơn
- Top 10 biệt thự đẹp nhất huyện Thanh Oai
- Top 10 biệt thự đẹp nhất huyện Thanh Trì
- Top 10 biệt thự đẹp nhất huyện Thạch Thất
- Top 10 biệt thự đẹp nhất huyện Thường Tín
- Top 10 biệt thự đẹp nhất huyện Đan Phượng
- Top 10 biệt thự đẹp nhất huyện Đông Anh
- Top 10 biệt thự đẹp nhất Hưng Yên
- Top 10 biệt thự đẹp nhất Khánh Hòa
- Top 10 biệt thự đẹp nhất Kiên Giang
- Top 10 biệt thự đẹp nhất Kon Tum
- Top 10 biệt thự đẹp nhất Lai Châu
- Top 10 biệt thự đẹp nhất Lào Cai
- Top 10 biệt thự đẹp nhất Lâm Đồng
- Top 10 biệt thự đẹp nhất Lạng Sơn
- Top 10 biệt thự đẹp nhất Long An
- Top 10 biệt thự đẹp nhất Nam Định
- Top 10 biệt thự đẹp nhất Nghệ An
- Top 10 biệt thự đẹp nhất Ninh Bình
- Top 10 biệt thự đẹp nhất Ninh Thuận
- Top 10 biệt thự đẹp nhất Phú Thọ
- Top 10 biệt thự đẹp nhất Phú Yên
- Top 10 biệt thự đẹp nhất phường 1
- Top 10 biệt thự đẹp nhất phường 11
- Top 10 biệt thự đẹp nhất phường 12
- Top 10 biệt thự đẹp nhất phường 13
- Top 10 biệt thự đẹp nhất phường 14
- Top 10 biệt thự đẹp nhất phường 15
- Top 10 biệt thự đẹp nhất phường 17
- Top 10 biệt thự đẹp nhất phường 19
- Top 10 biệt thự đẹp nhất phường 2
- Top 10 biệt thự đẹp nhất phường 21
- Top 10 biệt thự đẹp nhất phường 22
- Top 10 biệt thự đẹp nhất phường 24
- Top 10 biệt thự đẹp nhất phường 25
- Top 10 biệt thự đẹp nhất phường 26
- Top 10 biệt thự đẹp nhất phường 27
- Top 10 biệt thự đẹp nhất phường 28
- Top 10 biệt thự đẹp nhất phường 3
- Top 10 biệt thự đẹp nhất phường 5
- Top 10 biệt thự đẹp nhất phường 6
- Top 10 biệt thự đẹp nhất phường 7
- Top 10 biệt thự đẹp nhất phường An Khánh
- Top 10 biệt thự đẹp nhất phường An Lạc
- Top 10 biệt thự đẹp nhất phường An Lạc A
- Top 10 biệt thự đẹp nhất phường An Lợi Đông
- Top 10 biệt thự đẹp nhất phường An Phú
- Top 10 biệt thự đẹp nhất phường An Phú Đông
- Top 10 biệt thự đẹp nhất phường Ô Chợ Dừa
- Top 10 biệt thự đẹp nhất phường Bách Khoa
Xem phong thủy
Phần mềm dự toán công trình
Dự án tại các tỉnh
Quý khách hàng có thể xem các dự án Thiết kế kiến trúc tại đây:
- Nhà đẹp tại Hà Nội
- Nhà đẹp tại Hồ Chí Minh
- Nhà đẹp tại Hải Phòng
- Nhà đẹp tại Cần Thơ
- Nhà đẹp tại Đà Nẵng
- Nhà đẹp tại Quảng Ngãi
- Nhà đẹp tại Quảng Nam
- Nhà đẹp tại Quảng Bình
- Nhà đẹp tại Phú Yên
- Nhà đẹp tại Phú Thọ
- Nhà đẹp tại Ninh Thuận
- Nhà đẹp tại Ninh Bình
- Nhà đẹp tại Nghệ An
- Nhà đẹp tại Long An
- Nhà đẹp tại Lào Cai
- Nhà đẹp tại Lạng Sơn
- Nhà đẹp tại Lâm Đồng
- Nhà đẹp tại Lai Châu
- Nhà đẹp tại Quảng Ninh
- Nhà đẹp tại Quảng Trị
- Nhà đẹp tại Yên Bái
- Nhà đẹp tại Vĩnh Phúc
- Nhà đẹp tại Vĩnh Long
- Nhà đẹp tại Tuyên Quang
- Nhà đẹp tại Trà Vinh
- Nhà đẹp tại Tiền Giang
- Nhà đẹp tại Thừa Thiên Huế
- Nhà đẹp tại Thanh Hóa
- Nhà đẹp tại Thái Nguyên
- Nhà đẹp tại Thái Bình
- Nhà đẹp tại Tây Ninh
- Nhà đẹp tại Sơn La
- Nhà đẹp tại Sóc Trăng
- Nhà đẹp tại Kon Tum
- Nhà đẹp tại Kiên Giang
- Nhà đẹp tại Cà Mau
- Nhà đẹp tại Bình Thuận
- Nhà đẹp tại Bình Phước
- Nhà đẹp tại Bình Dương
- Nhà đẹp tại Bình Định
- Nhà đẹp tại Bến Tre
- Nhà đẹp tại Bắc Ninh
- Nhà đẹp tại Bạc Liêu
- Nhà đẹp tại Bắc Kạn
- Nhà đẹp tại Bắc Giang
- Nhà đẹp tại Bà Rịa Vũng Tàu
- Nhà đẹp tại An Giang
- Nhà đẹp tại Cao Bằng
- Nhà đẹp tại Đắk Lắk
- Nhà đẹp tại Đắk Nông
- Nhà đẹp tại Khánh Hòa
- Nhà đẹp tại Hưng Yên
- Nhà đẹp tại Hòa Bình
- Nhà đẹp tại Hậu Giang
- Nhà đẹp tại Hải Dương
- Nhà đẹp tại Hà Tĩnh
- Nhà đẹp tại Hà Nam
- Nhà đẹp tại Hà Giang
- Nhà đẹp tại Gia Lai
- Nhà đẹp tại Đồng Tháp
- Nhà đẹp tại Đồng Nai
- Nhà đẹp tại Điện Biên
- Nhà đẹp tại Nam Định


























































































































