Biệt thự 1 tầng tân cổ điển tại Hà Nội
Mẫu thiết kế biệt thự 1 tầng tân cổ điển tại Quốc Oai, Hà Nội với tổng mức đầu tư 1.3 tỷ trên diện tích 200m2. ☎ 0888.333.063
Chủ doanh nghiệp đồng phục bỏ thành phố về quê xây biệt thự 1 tầng khiến anh em họ hàng ai cũng choáng. Tưởng xây biệt thự to 4-5 tầng, không ngờ lại xây nhà mái Thái 1 tầng đẹp quá trời quá đất luôn - trông lạ lẫm giống nhà ở Mỹ. Nhưng ít ai biết, trước khi quyết định xây nhà 1 tầng, kiến trúc sư đã đến trực tiếp khảo sát thuyết phục chủ đầu tư chỉ nên xây biệt thự 1 tầng vẫn thể hiện được vị thế và một không gian sống đẳng cấp của giới thượng lưu. Vị doanh nhân khách hàng của chúng tôi rất ưng ý mẫu biệt thự 1 tầng tân cổ điển theo tư vấn thiết kế của kiến trúc sư. Mời quý khách tham khảo thông tin hồ sơ bản vẽ thiết kế biệt thự 1 tầng tân cổ điển tại Hà Nội tại đây:
- Chủ đầu tư : Ông Trần Tú Tài
- Địa điểm xây dựng : Quốc Oai – Hà Nội
- Phong cách : Hiện đại
- Mặt tiền : 1 mặt tiền chính
- Diện tích khu đất xây dựng 470 m2 ( mặt tiền 18m x chiều sâu 26m)
- Diện tích sàn xây dựng công trình : 200m2
- Số tầng : 1 tầng
- Tổng mức đầu tư : 1.3 tỷ
- Mặt tiền : 14.5m, chiều sâu: 15.5m
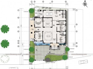
- Thông tin chi tiết về mặt bằng công năng công trình:
- Tầng 1 : 1 sảnh chính, 2 sảnh phụ, tiền sảnh, 1 phòng khách lớn, 1 phòng thờ, 2 phòng ngủ master + vệ sinh khép kín , 2 phòng ngủ thường, 1 phòng bếp & phòng ăn riêng 40m2 , 1 sảnh bếp, 1 wc chung, sân gia công phía sau nhà.
Hình ảnh dự án
Ảnh 5. Biệt thự 1 tầng tân cổ điển tại Hà Nội (Mã: KS50874-5)
Ảnh 6. Biệt thự 1 tầng tân cổ điển tại Hà Nội (Mã: KS50874-6)
Ảnh 7. Biệt thự 1 tầng tân cổ điển tại Hà Nội (Mã: KS50874-7)
Ảnh 8. Biệt thự 1 tầng tân cổ điển tại Hà Nội (Mã: KS50874-8)
Ảnh 9. Biệt thự 1 tầng tân cổ điển tại Hà Nội (Mã: KS50874-9)
Ảnh 10. Biệt thự 1 tầng tân cổ điển tại Hà Nội (Mã: KS50874-10)
Ảnh 11. Biệt thự 1 tầng tân cổ điển tại Hà Nội (Mã: KS50874-11)
Hồ sơ mẫu bản vẽ biệt thự 1 tầng của Nhà Đẹp Kiến Sang gồm những gì?
Trên đây là những thông tin sơ bộ về công trình mẫu nhà biệt thự 1 tầng đẹp, Vì thông tin bản quyền tác giả với khách hàng, Kiến Sang chỉ cung cấp các bản vẽ ý tưởng thiết kế công trình bao gồm mặt bằng công năng và phối cảnh 3D các góc nhìn, Thông tin chi tiết về khối lượng công việc nằm trong hồ sơ bản vẽ thiết kế thi công của Kiến Sang bao gồm:
- Phần Kiến trúc : Các bản vẽ mặt bằng bố trí nội thất phân chia không gian nhà, bản vẽ mặt bằng thi công tường xây các tầng, chi tiết cấu tạo các mặt đứng, măt cắt công trình & tất cả các bản vẽ kỹ thuật thi công phần chi tiết cửa, vệ sinh, cầu thang….& hồ sơ chi tiết quy hoạch xây dựng cổng và tường rào.
- Phần Kết cấu : Các bản vẽ thuyết minh hướng dẫn kỹ thuật, bản vẽ chi tiết cấu tạo kết cấu móng, chi tiết cấu tạo cột, dầm, sàn...tất cả các phần đều được kỹ sư Kiến Sang tính toán khoa học với hệ số an toàn hợp lý đối với từng hạng mục công trình.
- Phần bản vẽ thiết kế Điện & Thông tin liên lạc cho toàn bộ không gian các tầng.
- Phần bản vẽ thiết kế cấp thoát nước tổng thể.
Công trình được KTS Kiến Sang thiết kế luôn luôn theo xu hướng kiến trúc bền vững, mật độ xây dựng hợp lý, tất cả các phòng đều được kiến trúc sư Nhà Đẹp Kiến Sang đưa ra giải pháp lấy ánh sáng và thông gió tự nhiên giúp cho gia đình có không gian sống lý tưởng và gần gũi với thiên nhiên.
(Và đặc biệt, toàn bộ hồ sơ phong thủy được tính toán theo tuổi của chủ đầu tư, tất cả các kính thước cửa, cổng đều được căn chỉnh và lựa chọn theo thước lỗ ban số đẹp chuẩn xác)
Xây nhà biệt thự 1 tầng có cần phải thuê kiến trúc sư thiết kế hay không ?
Câu hỏi quan trọng mà nhiều gia đình thường đặt ra trước khi bắt đầu xây dựng mẫu nhà biệt thự 1 tầng là không biết mình nên tự ý thiết kế và thi công nhà mình hay không? Để giải đáp câu hỏi này, chúng tôi muốn chia sẻ một số trường hợp mà nhiều gia đình đã gặp phải khi tự thi công :
Vì vậy, tại sao không nên tìm một đơn vị thiết kế uy tín và chuyên nghiệp để đảm bảo quyền lợi của mình? Dưới đây là một số lý do tại sao bạn nên cân nhắc:
Những lợi ích khi khách hàng khi ký hợp đồng với Nhà Đẹp Kiến Sang ?
Đây là chương trình ưu đãi đặc biệt của Kiến Sang dành cho các khách hàng trong quá trình thiết kế và xây dựng công trình. Đối với chúng tôi, sự hài lòng của khách hàng luôn đặt lên hàng đầu, và chúng tôi muốn mang đến cho khách hàng những lợi ích và tiện ích tốt nhất.
Hãy liên hệ ngay với chuyên gia thiết kế kiến trúc của Kiến Sang để được tư vấn thiết kế kiến trúc và phong thủy MIỄN PHÍ.
Kiến Trúc Kiến Sang - "Kiến tạo hạnh phúc"
Tham khảo thêm :
Biệt thự 1 tầng tân cổ điển tại Bắc Giang
Cảm ơn quý khách đã dành rất nhiều thời gian tìm hiểu dự án biệt thự 1 tầng tân cổ điển tại Hà Nội của chúng tôi, hầu hết khách hàng đã truy cập website Kiến Sang đều trầm trồ và cảm thấy hài lòng vì website cung cấp đầy đủ thông tin khách hàng cần tham khảo. Tuy nhiên nội dung có thể còn nhiều thiếu sót, chúng tôi rất muốn làm hài lòng khách hàng vì vậy Quý khách có mong muốn tư vấn đừng ngại liên hệ với chuyên gia của chúng tôi để được tư vấn chi tiết hoàn toàn miễn phí. Dưới đây là các dự án biệt thự 1 tầng tân cổ điển tại Hà Nội tương tự kính mời Quý khách tham khảo:
Dự án tương tự
Phong thuỷ
Tra cứu hơn +3000 thông tin phong thủy hữu ích cho gia chủ khi xây nhà và sinh hoạt.
Dự toán công trình
YÊU CẦU BÁO GIÁ & DỰ TOÁN
- m2
- tầng
Hệ thống đang gửi yêu cầu lập dự toán và báo giá xây dựng... Vui lòng đợi trong ít giây!
Quý khách cần tư vấn thiết kế biệt thự 1 tầng liên hệ ngay kiến trúc sư Nhà Đẹp Kiến Sang theo thông tin liên hệ dưới đây. Công ty sẽ cử kiến trúc sư đến trực tiếp tư vấn khảo sát và lên phương án thiết kế nhà theo yêu cầu.

















